
Private Villa Utan / プライベート ヴィラ ウータン
長野県飯山市斑尾高原11492-375
お気に入りへ登録
KEY POINTの詳細
冬のスキーは勿論のこと、白樺やブナ、ミズナラなどの自然林が周囲に広がる1000mの高原の夏はまさに別天地。冷房に囲まれた生活を小休止してみませんか?敷地内の森は自由に歩くことができます。そこで生まれたばかりの風はあなた自身をリセットしてくれます。やわらかな日差しは心もあたためます。はるか山の向こうに陽が上り、また山の向こうに陽が暮れる。移ろう景色はまるごとあなたのものです。肌で感じて心も癒す。大切な人と素敵な休日をお過ごしください。
敷地内にはテークアウトのクレープショップ(斑尾高原クレープハウス:12月-3月)が併設されておりスイーツや食事系のクレープが食べられます。
信越トレイルの要所でもある斑尾高原。トレッキングコースへの入口も歩いて僅かです。様々なコースが整備されており歩くたびに新しい発見があります。秋のイベントのひとつであるトレイルランニングもひとつの風物詩となっています。
アフタースキーは冷えた身体を温泉で温めることもできます。当施設ご利用のお客様はすぐお隣のホテルにて格安で大浴場のご利用が可能です。当ヴィラのタオルをお持ちになりお出かけください(不定で休館日有り)温泉施設については他にも徒歩や車で僅かな場所に数箇所ございますので選択の幅も広いです。
■ワーケーションなど長期でのご利用(一週間~)は割引価格にてご案内可能です。別途ご相談ください。また企業様の保養所としてのご活用も歓迎しておりますのでお気軽にお問い合わせください。
※夏季期間(7月下旬頃~9月中旬頃)は近隣の施設で学生軽音部等の合宿が行われる日程があるため演奏音や歓声など周囲に音漏れが発生することがあります。
※周囲は自然豊かな環境で虫も多く住んでいます。網戸がありますが建物内に進入してしまうことがあります。
ヴィラ一棟貸料金(1グループ/1泊)
■4月~11月(ウィークデー※日曜含む)・・・30,000円~60,000円
■4月~11月(金・土・祝日・休前日)・・・40,000円~90,000円
■盆・GW等・・・40,000円~100,000円
■冬季・・・50,000円~130,000円
上記の範囲で繁忙期、閑散期、お客様の入り込み具合などで料金の変動がございます。見積もり依頼にてお問い合わせください。
[決済について]・・・ご予約が確定しましたら当施設の口座を提示させていただきます。前払い100%となり1週間以内にお願いしております。到着日まで1週間を切っている場合にはご到着日前に入金確認ができるようにお手続きください。やむを得ない事情により現地でのお支払いとなる場合には予めその旨お知らせください。尚、その場合には到着時払いとなりチェックアウト時のお支払いはできかねます。
キャンセル料
■二週間前よりかかります。それ以前はかかりません。
・二週間前以降は一週間前まで50%
・一週間前以降は80%
・前日、当日、連絡無しについては100%
・盆・暮れ・正月・GW等の連休期間については二週間前から100%
施設が公開している見積り例です。宿泊日・人数・プランによっては料金が異なります。料金は税込・管理費込。
2025年秋に新築された私たちのログハウスはどこに行くにも便利です。斑尾高原スキー場の入口までは約150m(徒歩2、3分程)公共のバス停や駐車場、多くのレストランなどがある中心部へも徒歩圏内です。また他の多くのスキー場へもバスや車を用いてアクセス良好で特に隣接の東急タングラムスキーサーカスへはリフトを乗り継いで行くことが可能です。夏は車で10分~30分圏内にゴルフ場も多く点在しており拠点としてご利用いただけます。
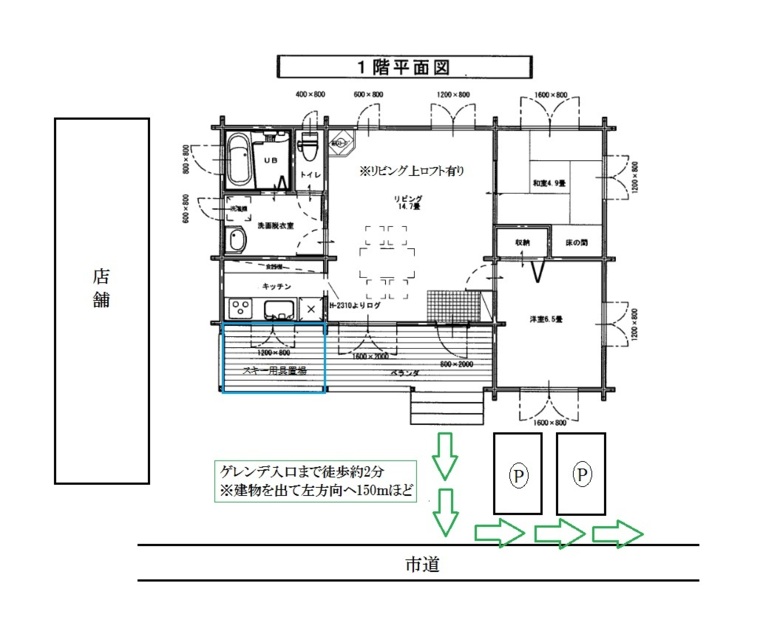
施設内は新築ですのでまだ木の良い香りが漂い、自然木の温もりを肌で感じることができる大変心地のよい空間となっております。リビング上部は吹き抜けになっており広々としたロフトもございます。その高い窓から外を見渡せば遠くの山々の眺望と周囲の自然林を見渡すことができます。ここが森の中に佇む一軒家だと気づかれることでしょう。ベランダの中に木が生えていたり少し変わったレイアウトのところもありますがこれはなるべく森を切り開かず木と家を共存させたいというオーナーの思いが込められています。
寝室は洋室と和室があり、特に和室はログハウスと融合した和洋折衷の空間が心を和ませます。
※室内は電子タバコも含め全面禁煙です。
※冷房設備はございません。
※盛夏でも寒暖差があります。防寒具をご用意ください。
※二泊以上のお客様はご希望によりシーツを新しい物に替えられます(交換作業はお客様にてお願いします)
※滞在期間中は当施設側での清掃はございません。
※東側庭内のデッキについては現在整備中となっておりますのでBBQは建物の前庭で行うことが可能です。デッキの完成時期については今後ページ内でお知らせいたします。
※ご予約のお客様以外の施設利用及び入室は固くお断りいたします。BBQの際の合流もできかねます。発覚した場合には利用料金を申し受けます。
※キッチンの調理器具やお皿等はバーベキュー用にはお使いにならないでください。
※火の始末に十分ご注意ください。
※戸外へのゴミの放置は禁止です(動物が寄ります)
※チェックイン(15:00~20:00迄)/チェックアウト(~10:00)の時間をお守りください。またチェックアウト後のご利用は追加利用料金が発生いたします。
※ペットの同伴はできません。また建物内へのペットの持ち込みが判明した場合には別途清掃費用として30,000円を申し受けます。
※チェックアウト前には簡単に施設内の現状復帰をお願いします(食器洗い等)
※ごみの分別をお願いいたします。
※キッチン以外での調理やにおいの強いもの及び揚げ物など油を多く使う料理は禁止とさせていただきます。
※リビングやお部屋(建物内)でホットプレートやガスコンロ等の火力器具を持ち込んで焼肉や鉄板焼き等を行うことは禁止となります。残臭や油汚れ、火災予防の観点から厳守をお願いします。
※常軌を逸した使用の仕方があった場合には当施設の判断により追加の清掃料を請求いたします。
※その他お客様の過失にて当施設の所有物に物損などの損害が発生した場合にはその係る現状復帰代金全額についてお客様が賠償責任を負います。
※次に使われる方のためにもご配慮をもってお使いください。
届出:長野県北信保健所指令07北保第101-24号
キッチンやお風呂、洗濯機等が兼ね揃えられ長期滞在も問題ありません。ご希望があれば提携施設で使える朝食と夕食のバイキングチケットも販売しております(冬季だけのご案内。現金のみ対応)
スキー用具のレンタルについて:当施設の左手に専門店があり必要なものは全て揃いますので手ぶらでお越しいただいても安心です。
※基本的に夏は涼しい環境のため冷房設備はございません。(扇風機のご用意はあります)盛夏の数日間は多少暑く感じるれる日がある可能性はございます。予めご了承ください。
※調味料類はご用意しておりませんので予めお持ちください(衛生上の観点から)
実際に宿泊して良かった!という施設への応援メッセージを募集しております。
現在、情報がありません。
予約問い合わせ時のアンケートです。他人がどのようなポイントに目を付け、検討理由にしたかを知って、ご自身の参考にして下さい。
・斑尾高原スキー場・・・南側入口(第七駐車場口)まで徒歩2、3分。タングラムスキーサーカスへはリフトを乗り継いでアクセス可能。車の場合は約10分
・妙高・赤倉・黒姫方面のスキー場・・・車20分~30分
・野沢温泉・戸狩・木島平方面のスキー場・・・車20分~40分
・志賀高原スキー場・・・車40分~
・野尻湖・・・車約20分
・戸隠・・・車約45分
・地獄谷野猿公苑・・・車約40分
・飯山市内・・・車約20分
・小布施・・・車約40分
・まだらおの湯・・・車約5分
・ゴルフ場・・・車10分~30分圏内に5,6箇所有り(東急タングラムゴルフクラブ、斑尾C.C、志賀高原C.C、長野国際C.C、妙高高原ゴルフ倶楽部、赤倉ゴルフコース等)
・ナウマンゾウ博物館・・・車約20分
・一茶記念館・・・車約20分
・菜の花公園・・・車約20分
Private Villa Utan / プライベート ヴィラ ウータン
長野県飯山市斑尾高原11492-375
・施設所在地・・・飯山市斑尾高原11492-375
・上信越道豊田飯山ICより約15分
・JR飯山駅より車約20分※路線バス有り。バス停(斑尾高原ホテル前)より当施設までは徒歩約15分
・北しなの線妙高高原駅より約20分
駐車場: 2台